丁兰生活网

查看: 22200|回复: 19

[装修日记] 我的装修日记

  [复制链接]

该用户从未签到

参加活动:0

组织活动:0

1

主题

17

回帖

199

金币

小班

Rank: 1

积分
129
发表于 2010-12-5 11:16:57 | 显示全部楼层 |阅读模式
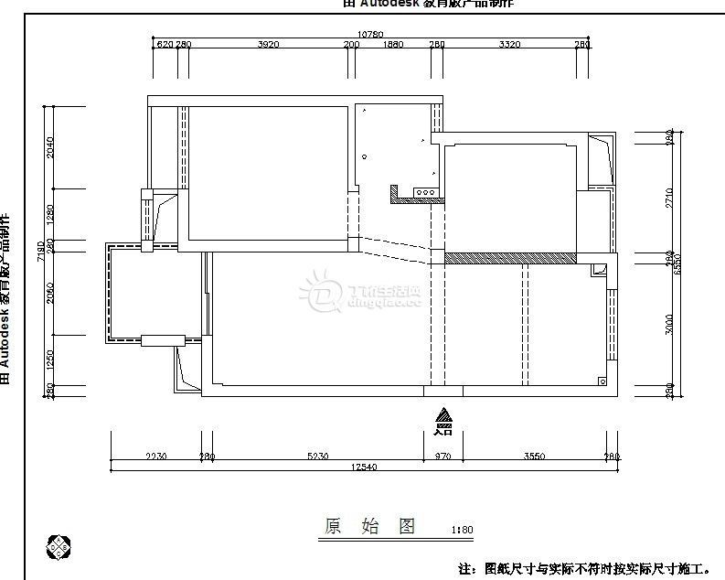
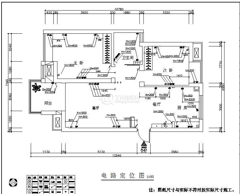
话不多说直接上图:P
更多图片 小图 大图
组图打开中,请稍候......

评分

参与人数 6金币 +61 威望 +2 魅力 +15 收起 理由
nen110 + 20 赞一个!
cck + 20 + 5 期待
小脚丫酸酸 + 1 不错不错,卧室里多留几个开关不会错
boss + 2 恭喜开贴
老丁 + 20 期待完工!

查看全部评分

该用户从未签到

参加活动:0

组织活动:0

1

主题

17

回帖

199

金币

小班

Rank: 1

积分
129
 楼主| 发表于 2010-12-5 11:35:58 | 显示全部楼层
12.3
更多图片 小图 大图
组图打开中,请稍候......

评分

参与人数 1金币 +1 收起 理由
拿烟抽寂寞 + 1 期待期待~~~

查看全部评分

该用户从未签到

参加活动:0

组织活动:0

49

主题

452

回帖

1543

金币

小一

Rank: 2

积分
1045
发表于 2010-12-5 11:42:09 | 显示全部楼层
哪个小区的?

该用户从未签到

参加活动:0

组织活动:0

22

主题

81

回帖

2911

金币

小一

Rank: 2

积分
1156
发表于 2010-12-5 11:50:28 | 显示全部楼层
好像广宇的户型?

该用户从未签到

参加活动:0

组织活动:0

1

主题

17

回帖

199

金币

小班

Rank: 1

积分
129
 楼主| 发表于 2010-12-5 13:11:49 | 显示全部楼层
回复 面哥 的帖子

华丰版块元都新景的{:1_1:}

该用户从未签到

参加活动:0

组织活动:0

65

主题

441

回帖

1080

金币

版主

Rank: 7Rank: 7Rank: 7

积分
1041

特别贡献版主优秀会员

发表于 2010-12-5 13:17:44 | 显示全部楼层
:lol关注下!占楼

该用户从未签到

参加活动:0

组织活动:0

98

主题

348

回帖

3649

金币

版主

爱管闲事

Rank: 7Rank: 7Rank: 7

积分
2751

特别贡献优秀会员版主

QQ
发表于 2010-12-5 13:24:20 | 显示全部楼层
关注!期待新的装修进展!:victory:

该用户从未签到

参加活动:0

组织活动:0

756

主题

9451

回帖

10万

金币

超级版主

权哥

Rank: 8Rank: 8

积分
53809

桃小丁发烧车友水神优秀会员吃货勋章

发表于 2010-12-6 14:41:37 | 显示全部楼层
恭喜开工

该用户从未签到

参加活动:1

组织活动:0

23

主题

320

回帖

1264

金币

大班

Rank: 1

积分
801
发表于 2010-12-8 21:18:43 | 显示全部楼层
恭喜完成水电第一步

该用户从未签到

参加活动:0

组织活动:0

65

主题

441

回帖

1080

金币

版主

Rank: 7Rank: 7Rank: 7

积分
1041

特别贡献版主优秀会员

发表于 2010-12-9 07:37:49 | 显示全部楼层
最近进展如何?
您需要登录后才可以回帖 登录 | 注册

本版积分规则

 
 
技术支持
在线客服
工作时间:
8:00-18:00
客服热线:
15868825306
微信小编扫一扫

QQ|小黑屋| Archiver| 丁桥|

关于我们 | 招贤纳士 | 版权声明 | 免责声明 | 市场合作

丁兰生活网

丁兰生活网合作热线 0571-88992676 15868825306
浙公网安备 33010402000160号
浙ICP备09103129号-1号X3.4©


快速回复 返回顶部 返回列表