丁兰生活网

查看: 23686|回复: 17

[装修日记] 我的90方三室二厅,现代简约

    [复制链接]

该用户从未签到

参加活动:0

组织活动:0

1

主题

59

回帖

985

金币

小班

Rank: 1

积分
401
发表于 2011-12-22 22:31:24 | 显示全部楼层 |阅读模式
本帖最后由 woaizhoushiyu 于 2011-12-22 22:33 编辑

09年11月份买了丁桥的联合格里,2年的等待,终于拿到新房了,跟其他首次装修的人一样,网上做了一些的装修功课,起早贪黑的跑了10几家的装修公司,看了很多的工地现场,跟各公司项目经理,老板交谈,比对预算后,最后选择了以半包的形式托付给老师傅装潢,相信老师傅装潢的设计师小程及施工团队能给我个温馨的小窝,也感谢其他曾帮助过我的装修公司。

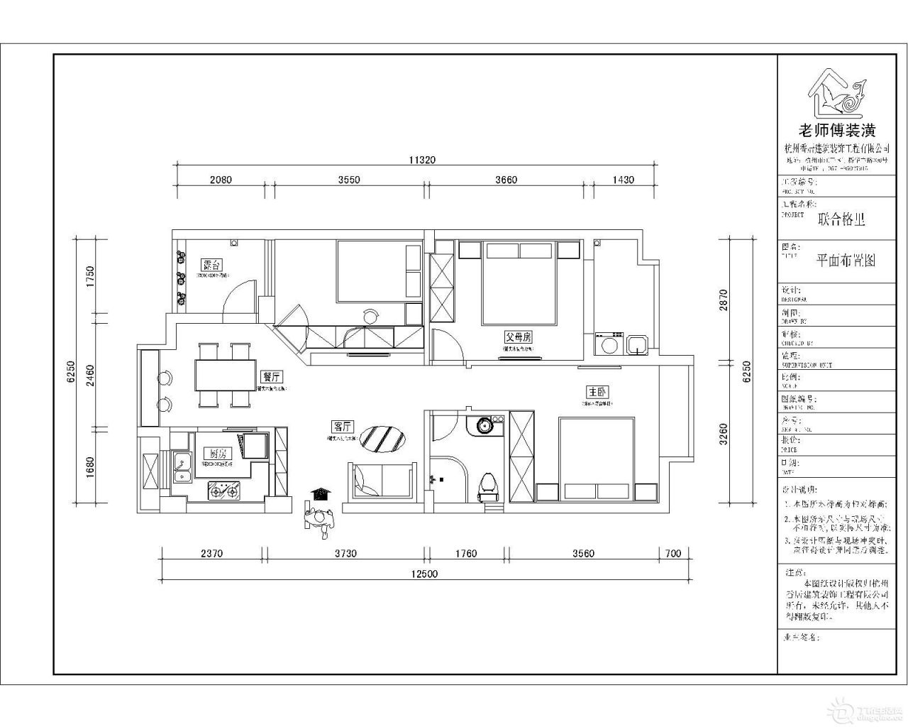
平米图纸

平米图纸

商定下施工计划,19号水电定位,20号开准备开工,水电工yin师傅进场,21号开始敲墙,2012年1月2号泥工进场,5号木工进场。

评分

参与人数 2金币 +20 威望 +10 魅力 +5 收起 理由
安静 + 20 + 10 恭喜
boss + 5 很给力!

查看全部评分

该会员没有填写今日想说内容.

该用户从未签到

参加活动:0

组织活动:0

429

主题

1278

回帖

7900

金币

vip

Rank: 8Rank: 8

积分
7163

版主超级版主

发表于 2011-12-23 14:08:40 | 显示全部楼层
期待进一步进展。

该用户从未签到

参加活动:0

组织活动:0

1

主题

59

回帖

985

金币

小班

Rank: 1

积分
401
 楼主| 发表于 2011-12-26 10:31:08 | 显示全部楼层
昨天去跑装饰市场,今天去参加了19楼的采购大会,没去工地看,来不及更新。
今天年底收官还是很热闹的,下了"奥普电灯,巨成移门,创想科技集成吊顶,品洁橱柜,西门子开关,美丽岛地板,古奇墙纸”。"创想科技老总还是很给力的,送了个幸运网友一个卫生间的全套集成吊顶。
该会员没有填写今日想说内容.

该用户从未签到

参加活动:0

组织活动:0

1

主题

275

回帖

1857

金币

大班

Rank: 1

积分
998
发表于 2011-12-26 13:07:20 | 显示全部楼层
有房子的孩子,是多么幸福啊。

该用户从未签到

参加活动:0

组织活动:0

1

主题

59

回帖

985

金币

小班

Rank: 1

积分
401
 楼主| 发表于 2011-12-27 13:01:18 | 显示全部楼层

该用户从未签到

参加活动:0

组织活动:0

1

主题

59

回帖

985

金币

小班

Rank: 1

积分
401
 楼主| 发表于 2012-1-6 10:49:48 | 显示全部楼层

该用户从未签到

参加活动:0

组织活动:0

1

主题

59

回帖

985

金币

小班

Rank: 1

积分
401
 楼主| 发表于 2012-1-9 15:59:09 | 显示全部楼层
本帖最后由 woaizhoushiyu 于 2012-3-17 12:13 编辑

年底了都比较忙,去的时候拍了照片都没时间上传,目前泥工接近尾声,谈谈总的感觉:水电这块——水电施工师傅小尹,从与我,与设计师上缺乏沟通,在施工开槽过程中,我与设计师沟通过程中,想多预埋点线管,插座,说不能加,拜托,第一次装修,哪会想的那么周到,当然想起来需要什么的时候要跟设计师去沟通的。马上打电话给老师傅公司老板——杨总,杨总过来很爽快的答应同意拉热水管,这个还是很不错的。1月2号就验收。
          泥工师傅——方师傅进场,询问阳台水管够,泥工师傅说管道包了,洗衣机位置太突出,占位,建议开槽封埋,后来找杨总沟通,同意开槽,重新埋进(目前还是露在外面)。小方师傅施工过程中很认真仔细,我几次晚上6点多去,还看他一个人辛辛苦苦的再那干活,墙砖,地砖都铺的很平,帮我算着墙砖贴,真不错。
         泥工师傅——方师傅,年纪看起来不是很大,但是做活还是很细心,认真,地砖,墙砖铺的还是很好,赞一个!
     公司老板——杨总,人还是很不错,实在。我从多家装修公司中,选择了你,就代表我对你的信任,我的房子就拜托你了!
     设计师——小程,一个年轻的小姑娘,同为80后,相信你会给我一个现代简约,温馨的小窝!

强电,弱点一角

强电,弱点一角

厨房侧面,水管未铺

厨房侧面,水管未铺

客厅小孩房电线布置

客厅小孩房电线布置

厨房移门正面

厨房移门正面

厨房敲墙后正面一角

厨房敲墙后正面一角

现在的阳台水管,还未开槽埋管

现在的阳台水管,还未开槽埋管

悲剧的阳台水管

悲剧的阳台水管

黑色后来加的热水管

黑色后来加的热水管


该会员没有填写今日想说内容.

该用户从未签到

参加活动:0

组织活动:0

1

主题

59

回帖

985

金币

小班

Rank: 1

积分
401
 楼主| 发表于 2012-1-9 16:24:25 | 显示全部楼层
DSCN7124.JPG 泥工师傅小方,认真的帮我擦洗卫生间地砖

DSCN7109.JPG 厨房墙砖地砖一角,包括,柜内砖,那个龙头本来是接小厨宝的,现在多余了

DSCN7104.JPG 加上热水管,通往厨房一角
DSCN7106.JPG
该会员没有填写今日想说内容.

该用户从未签到

参加活动:0

组织活动:0

3

主题

6

回帖

124

金币

托班

Rank: 1

积分
76
QQ
发表于 2012-2-7 16:08:33 | 显示全部楼层

该用户从未签到

参加活动:0

组织活动:0

0

主题

2

回帖

14

金币

托班

Rank: 1

积分
6
发表于 2012-2-13 10:13:29 | 显示全部楼层
正打算装修呢 也想请老师傅来装的 看来一颗老鼠屎会坏一锅粥啊
您需要登录后才可以回帖 登录 | 注册

本版积分规则

 
 
技术支持
在线客服
工作时间:
8:00-18:00
客服热线:
15868825306
微信小编扫一扫

QQ|小黑屋| Archiver| 丁桥|

关于我们 | 招贤纳士 | 版权声明 | 免责声明 | 市场合作

丁兰生活网

丁兰生活网合作热线 0571-88992676 15868825306
浙公网安备 33010402000160号
浙ICP备09103129号-1号X3.4©


快速回复 返回顶部 返回列表