丁兰生活网

查看: 95095|回复: 38

郡枫绿园楼盘资料集

  [复制链接]

该用户从未签到

参加活动:1

组织活动:0

289

主题

971

回帖

3万

金币

一派堂主

Rank: 7Rank: 7Rank: 7

积分
14568
发表于 2011-11-17 17:25:38 | 显示全部楼层 |阅读模式
本帖最后由 luqifn 于 2013-2-1 10:52 编辑

首发郡枫绿园鸟瞰图……
鸟瞰图.jpg

该用户从未签到

参加活动:1

组织活动:0

289

主题

971

回帖

3万

金币

一派堂主

Rank: 7Rank: 7Rank: 7

积分
14568
 楼主| 发表于 2011-11-17 20:33:44 | 显示全部楼层
来几张沙盘的
DSC01941.JPG
DSC01940.JPG
DSC01939.JPG

评分

参与人数 1威望 +10 收起 理由
boss + 10 很给力!

查看全部评分

该用户从未签到

参加活动:1

组织活动:0

289

主题

971

回帖

3万

金币

一派堂主

Rank: 7Rank: 7Rank: 7

积分
14568
 楼主| 发表于 2011-11-17 20:37:42 | 显示全部楼层
地图……
Img323919885.jpg

该用户从未签到

参加活动:1

组织活动:0

289

主题

971

回帖

3万

金币

一派堂主

Rank: 7Rank: 7Rank: 7

积分
14568
 楼主| 发表于 2011-11-17 20:48:05 | 显示全部楼层
小区规划图……
规划.jpg

该用户从未签到

参加活动:1

组织活动:0

289

主题

971

回帖

3万

金币

一派堂主

Rank: 7Rank: 7Rank: 7

积分
14568
 楼主| 发表于 2011-11-17 20:49:11 | 显示全部楼层
再来张沙盘远景

该用户从未签到

参加活动:1

组织活动:0

289

主题

971

回帖

3万

金币

一派堂主

Rank: 7Rank: 7Rank: 7

积分
14568
 楼主| 发表于 2011-11-17 20:49:41 | 显示全部楼层
沙盘远景
郡枫绿园.jpg

该用户从未签到

参加活动:1

组织活动:0

289

主题

971

回帖

3万

金币

一派堂主

Rank: 7Rank: 7Rank: 7

积分
14568
 楼主| 发表于 2011-11-17 20:57:12 | 显示全部楼层
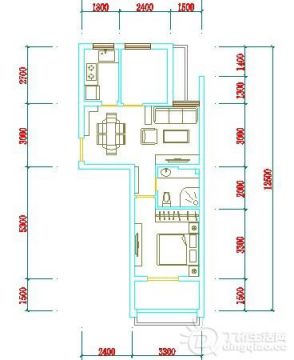
上一张01户型图
01户型2.jpg
01户型.jpg

该用户从未签到

参加活动:1

组织活动:0

289

主题

971

回帖

3万

金币

一派堂主

Rank: 7Rank: 7Rank: 7

积分
14568
 楼主| 发表于 2011-11-17 21:01:11 | 显示全部楼层
上一张东5户型图
东区5幢(3-14).png

该用户从未签到

参加活动:1

组织活动:0

289

主题

971

回帖

3万

金币

一派堂主

Rank: 7Rank: 7Rank: 7

积分
14568
 楼主| 发表于 2011-11-17 21:05:55 | 显示全部楼层
上一张丁桥全局……
丁桥(1).jpg

该用户从未签到

参加活动:1

组织活动:0

289

主题

971

回帖

3万

金币

一派堂主

Rank: 7Rank: 7Rank: 7

积分
14568
 楼主| 发表于 2011-11-18 13:28:44 | 显示全部楼层
规划告示牌
规划告示牌.jpg
您需要登录后才可以回帖 登录 | 注册

本版积分规则

 
 
技术支持
在线客服
工作时间:
8:00-18:00
客服热线:
15868825306
微信小编扫一扫

QQ|小黑屋| Archiver| 丁桥|

关于我们 | 招贤纳士 | 版权声明 | 免责声明 | 市场合作

丁兰生活网

丁兰生活网合作热线 0571-88992676 15868825306
浙公网安备 33010402000160号
浙ICP备09103129号-1号X3.4©


快速回复 返回顶部 返回列表