丁兰生活网

查看: 37047|回复: 40

[装修日记] 【绿色装修无限创意】恬恬阳光小窝——创意装修(更新至40楼,敬请期待更多内容……)

  [复制链接]

该用户从未签到

参加活动:0

组织活动:0

33

主题

521

回帖

5919

金币

小二

Rank: 2

积分
2716
发表于 2011-11-11 13:28:40 | 显示全部楼层 |阅读模式
本帖最后由 cyz2277 于 2011-11-22 16:47 编辑

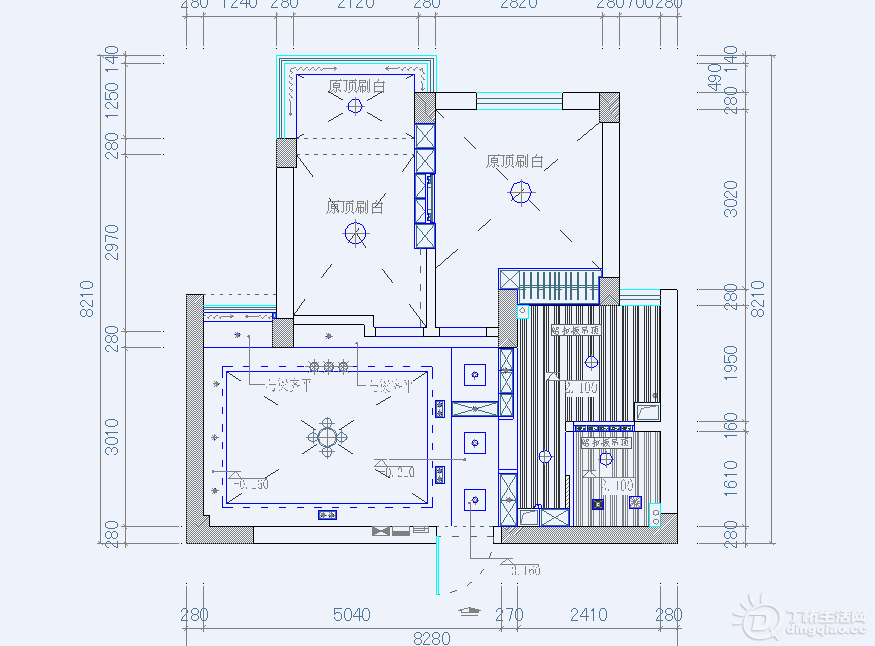
介绍:一、位置(17-2-502)
         二、建筑面积61.66平方,套内面积?????
         三、户型(K)
         四、结构(两室一厅一厨一卫一阳台)
         

         先从几个平面图说吧:

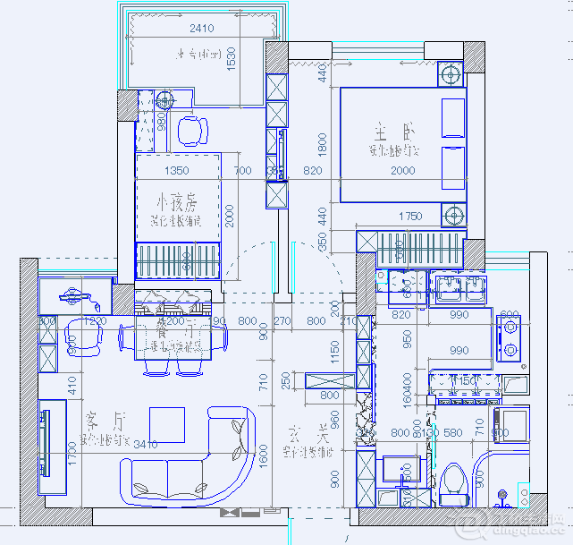
平面布置:

         


地面布置



原始结构

上丁桥生活网,享精彩新生活!

该用户从未签到

参加活动:0

组织活动:0

33

主题

521

回帖

5919

金币

小二

Rank: 2

积分
2716
 楼主| 发表于 2011-11-11 13:43:02 | 显示全部楼层
装修说明:      
      这个方案做的柜子比较多,从每个功能间说吧。
      1、卫生间:我们选择干湿分开,里面马桶那块整体抬高,放淋浴房(鉴于空间有限,只能做个转角的,900*900)和洗衣机,干区做了个朝走道的装饰柜子,边上装个550cm左右的镜子,下面台盆也是柜子,跟上面的装饰柜一体的,这样好看点。卫生间和厨房的吊顶是装修公司给升级的集成吊顶。
      2、厨房:这块做的东西也挺多的,包括了上下橱柜框架(烤漆门和台面自己做的),还有吊顶(刚说过的),厨房和卫生间之间那面墙,我们装了玻璃砖,这样卫生间彩光会好点。
       3、客厅、玄关:进门处做了鞋柜,正对门处玄关(下面是双开门的柜子,上面是不规则的隔板);玄关边上做了个客厅装饰柜,柜体也挺高的,具体的样式图片我没传;沙发对门是电视柜,这个大家都知道的(至于为什么沙发要这么放,主要还是想利用下客厅窗户这块做个书桌),电视柜和电视背景也都是装修公司一起做好的,电视柜边上坐了和书桌连体的书柜,不知道效果如何?接下来就是餐桌这块了,餐桌边上我们做了一排固定的凳子(里面可以放点东西的),平常一家三口用用也够了,要是有客人来了,就可以移出来。
      4、主卧:主卧这边肯定包括了一个大衣柜,大衣柜我们是要求不要做挂裤子的那种,因为觉得挂裤子的地方实在不是很实用,平时也很少会把裤子特意的去挂在那里,呵呵,不知道有没同感的;另外床对面还是做个了电视柜,但不一定会放电视,就算备用吧,电视柜上下面是四开门的小柜子,边上这是几块隔板,放点小的东西之类的。
      5、次卧、阳台:我们有个小的,所以,次卧这么我们打算买个成品高低铺(上面是床,下面是书桌和书柜的那种),这里也就没有装修公司做的东西了。出来阳台这,我们做了40cm高的榻榻米。
      别的就是几个门啊,门框啊,反正是半包的,大家都知道包括了哪些,所以也不多说了。

上丁桥生活网,享精彩新生活!

该用户从未签到

参加活动:0

组织活动:0

33

主题

521

回帖

5919

金币

小二

Rank: 2

积分
2716
 楼主| 发表于 2011-11-11 14:11:01 | 显示全部楼层
本帖最后由 cyz2277 于 2011-11-11 14:19 编辑

电视背景墙与书柜:

电视背景与书柜

电视背景与书柜

电脑桌与餐桌卡座:

电脑桌与餐桌凳

电脑桌与餐桌凳

橱柜立面:

橱柜西立面

橱柜西立面

橱柜南立面

橱柜南立面

橱柜北立面

橱柜北立面

玻璃砖:

厨房、卫生间柜平面图

厨房、卫生间柜平面图

主卧装饰柜:

主卧装饰柜

主卧装饰柜

主卧衣柜:

主卧衣柜

主卧衣柜

玄关装饰柜:(实际效果跟这个不一样哦,敬请关注)

玄关装饰柜

玄关装饰柜

客厅装饰柜与鞋柜:

鞋柜与客厅装饰柜

鞋柜与客厅装饰柜

阳台榻榻米平面与立面

榻榻米平面与立面

榻榻米平面与立面

家具尺寸:

家具尺寸图

家具尺寸图

顶面布置:

顶面布置图

顶面布置图

上丁桥生活网,享精彩新生活!

该用户从未签到

参加活动:0

组织活动:0

33

主题

521

回帖

5919

金币

小二

Rank: 2

积分
2716
 楼主| 发表于 2011-11-11 15:24:27 | 显示全部楼层
继续继续
先来卫生间的几张毕业照吧
玻璃砖.jpg
淋浴房.jpg
卫生间2.jpg
卫生间1.jpg


卫生间.jpg
上丁桥生活网,享精彩新生活!

该用户从未签到

参加活动:0

组织活动:0

33

主题

521

回帖

5919

金币

小二

Rank: 2

积分
2716
 楼主| 发表于 2011-11-11 15:26:56 | 显示全部楼层
接下来呢,厨房的吧
厨房西.jpg
厨房南.jpg
厨房北.jpg
厨房.jpg

上丁桥生活网,享精彩新生活!

该用户从未签到

参加活动:0

组织活动:0

33

主题

521

回帖

5919

金币

小二

Rank: 2

积分
2716
 楼主| 发表于 2011-11-11 15:29:30 | 显示全部楼层
本帖最后由 cyz2277 于 2011-11-11 15:29 编辑

厨卫五金
厨卫五金1.jpg 厨卫五金.jpg 厨卫五金2.jpg
上丁桥生活网,享精彩新生活!

该用户从未签到

参加活动:0

组织活动:0

33

主题

521

回帖

5919

金币

小二

Rank: 2

积分
2716
 楼主| 发表于 2011-11-11 16:42:08 | 显示全部楼层
上丁桥生活网,享精彩新生活!

该用户从未签到

参加活动:7

组织活动:0

332

主题

2102

回帖

315万

金币

管理员

Rank: 9Rank: 9Rank: 9

积分
949084

发烧车友优秀会员管理员吃货勋章桃小丁

QQ
发表于 2011-11-11 16:46:27 | 显示全部楼层
cyz2277 发表于 2011-11-11 16:42
卫生间装修心得
我家是K户型,卫生间是暗卫,没有光源,所以在拿房前一直考虑要增加卫生间的透光度,避免白 ...

吐血啊,我装修的遗憾就是卫生间没有装玻璃砖啊
丁桥生活网-我们都在

该用户从未签到

参加活动:0

组织活动:0

0

主题

6

回帖

63

金币

托班

Rank: 1

积分
25
发表于 2011-11-11 16:49:00 | 显示全部楼层
{:1_243:}{:1_243:}{:1_243:}{:1_243:}{:1_243:}{:1_243:}{:1_243:}{:1_243:}

该用户从未签到

参加活动:0

组织活动:0

33

主题

521

回帖

5919

金币

小二

Rank: 2

积分
2716
 楼主| 发表于 2011-11-11 16:54:16 | 显示全部楼层
上丁桥生活网,享精彩新生活!
您需要登录后才可以回帖 登录 | 注册

本版积分规则

 
 
技术支持
在线客服
工作时间:
8:00-18:00
客服热线:
15868825306
微信小编扫一扫

QQ|小黑屋| Archiver| 丁桥|

关于我们 | 招贤纳士 | 版权声明 | 免责声明 | 市场合作

丁兰生活网

丁兰生活网合作热线 0571-88992676 15868825306
浙公网安备 33010402000160号
浙ICP备09103129号-1号X3.4©


快速回复 返回顶部 返回列表