丁兰生活网

查看: 7581|回复: 0

【绿色装修无限创意】-温馨简约三居室★范例★

[复制链接]

该用户从未签到

参加活动:7

组织活动:0

332

主题

2102

回帖

315万

金币

管理员

Rank: 9Rank: 9Rank: 9

积分
949084

发烧车友优秀会员管理员吃货勋章桃小丁

QQ
发表于 2011-10-20 20:49:38 | 显示全部楼层 |阅读模式

a_650033192.jpg

室内设计就是以点、线、面、体来塑造空间,本设计则用之为设计的理念。在室内的建筑形态塑造方面大量采用了穿插和加减的设计手法。并通过线型灯和纹理的地面运用,从而来体现点、线、面、体现的概念元素。同时使用黑白灰加企业色(红、黑、白)为主色调,配合温暖的木制地板,严肃而亲近

a_65003319.jpg
在功能方面,客厅是交友娱乐的中心,一定要大方气派,墙面采用米黄色,与沙发颜色刚好相衬,再加上沙发靠垫颜色与拟人化的装饰物的星星点缀,整个空间显得更加完美和舒畅。在灯光的烘托下,餐厅显示出了古代风格的典雅;而卧室则通过灯光的照射与装饰画的点扮,反衬出家的温馨与浪漫!

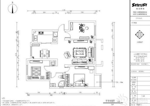
平面布置图
1.jpg
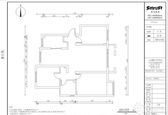
装修原图
2.jpg



丁桥生活网-我们都在
您需要登录后才可以回帖 登录 | 注册

本版积分规则

 
 
技术支持
在线客服
工作时间:
8:00-18:00
客服热线:
15868825306
微信小编扫一扫

QQ|小黑屋| Archiver| 丁桥|

关于我们 | 招贤纳士 | 版权声明 | 免责声明 | 市场合作

丁兰生活网

丁兰生活网合作热线 0571-88992676 15868825306
浙公网安备 33010402000160号
浙ICP备09103129号-1号X3.4©


快速回复 返回顶部 返回列表