丁兰生活网

查看: 7058|回复: 5

[优惠\活动] 经典博瑞引您回家——截止24日观筑与博瑞签订合同客户已达22套

[复制链接]

该用户从未签到

参加活动:0

组织活动:0

3

主题

14

回帖

292

金币

小班

Rank: 1

积分
135
发表于 2011-9-24 18:23:39 | 显示全部楼层 |阅读模式
本帖最后由 博瑞装饰 于 2011-9-24 18:24 编辑

经典博瑞带您回家

  祝大家周末愉快,博瑞装饰已成功在观筑3号楼处设点,现场有天阳观筑所有的实测户型、方案;设计师将为您提供“一对一”的设计咨询服务;同时博瑞装饰安排了金牌施工员为你现场讲解施工工艺及查看房子质量;(博瑞在建工地可随时参观)
  目前天阳观筑与博瑞装饰签订合同客户已达22套。为感谢广大业主的厚爱,博瑞装饰推出精品样板房征集活动,从已有的30套增加至50套。更多天阳观筑专享优惠请到现场3号楼处咨询



太阳升起,新的一天,新的开始!

该用户从未签到

参加活动:0

组织活动:0

3

主题

14

回帖

292

金币

小班

Rank: 1

积分
135
 楼主| 发表于 2011-9-24 18:27:06 | 显示全部楼层
天阳观筑小区艺居户型设计欣赏
截止日前,天阳观筑与杭州博瑞装饰签订合同客户已达22套,为感谢广大业主的厚爱,特将天阳观筑艺居主力户型方案整合。经典博瑞,巅峰制作,让我们拭目以待吧!

天阳观筑,欢迎您回家!

天阳观筑,欢迎您回家!

博瑞装饰,欢迎您回家!

博瑞装饰,欢迎您回家!
太阳升起,新的一天,新的开始!

该用户从未签到

参加活动:0

组织活动:0

3

主题

14

回帖

292

金币

小班

Rank: 1

积分
135
 楼主| 发表于 2011-9-24 18:29:38 | 显示全部楼层
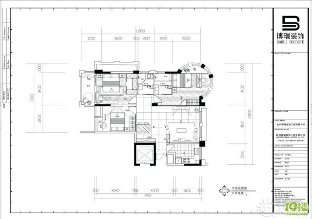
面积:89平(1-2-1501)

户型结构:3室一厅一厨一卫1阳台


本案充分体现空间感,在原有结构上加以改造:进门处电视背景与原有阳台设计成一体背景墙面,使整个空间更加大气;原有室内阳台作为储藏间,弥补了储藏空间的欠缺;餐厅与次卧墙面直接以柜体隔断,大大节省了空间,是整个房间更加温馨通透。

14.jpg

13.jpg
太阳升起,新的一天,新的开始!

该用户从未签到

参加活动:0

组织活动:0

3

主题

14

回帖

292

金币

小班

Rank: 1

积分
135
 楼主| 发表于 2011-9-24 18:31:48 | 显示全部楼层
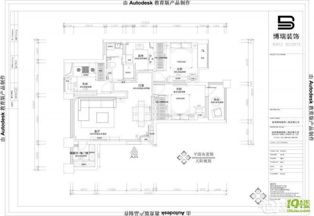
面积:75平-中间套(3-2-302)

户型结构:2室2厅1厨1卫2阳台


本案设计师将客厅与阳台打通,空间上增加了流通性,使得气流贯通;阳台作飘窗处理,内部做储藏功能,一来可以作为储物空间,二来可以作为休闲小空间;进门正对着那面玄关墙改造成进门玄关鞋柜;同时整体设计兼具了实用功能,是简约设计很好的一个创意。

75方户型图

75方户型图


75方设计方案

75方设计方案




太阳升起,新的一天,新的开始!

该用户从未签到

参加活动:0

组织活动:0

3

主题

14

回帖

292

金币

小班

Rank: 1

积分
135
 楼主| 发表于 2011-9-24 18:33:11 | 显示全部楼层
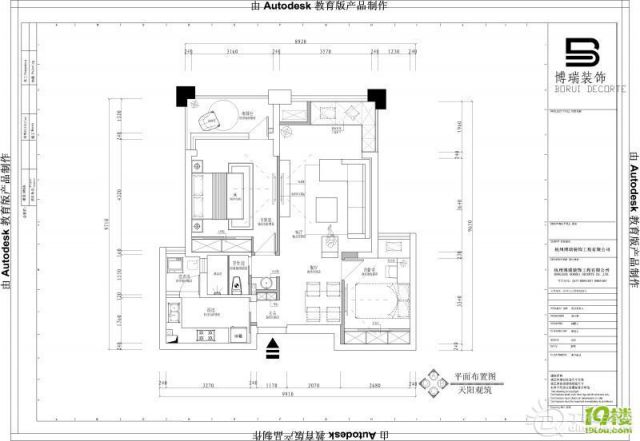
面积:89平(1-1-402)

户型结构:3室一厅一厨一卫2阳台


本案充分体现实用功能,利用书房隔断墙面增加鞋柜及储藏功能,划分玄关区域。厨房利用后期墙体改把冰箱位置作为内嵌式,使厨房功能更加合理。在书房相对狭小的空间,利用机房空间一分为二,一半作为书房书桌位置,一半兼顾空调室外机摆放。

89方户型图

89方户型图


89方设计图

89方设计图


太阳升起,新的一天,新的开始!

该用户从未签到

参加活动:0

组织活动:0

3

主题

14

回帖

292

金币

小班

Rank: 1

积分
135
 楼主| 发表于 2011-9-24 18:36:31 | 显示全部楼层
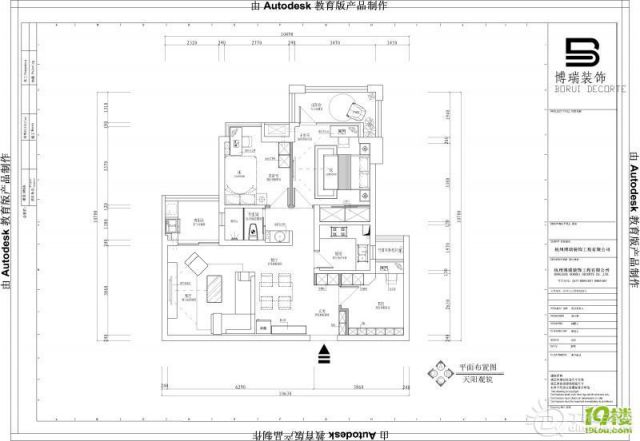
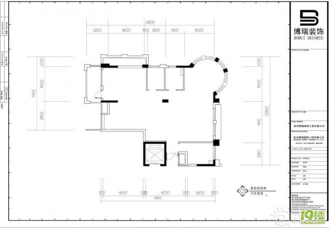
面积:108平

户型结构:三室二厅一厨二卫一阳台

本方案中空间格局改变较少,合理利用轻质隔墙,增大原有住房面积。强调功能细节与空间的互动性:进门直接看到电视背景墙,利用背景墙原有的比例落差与过道空间设计钢琴区域既有装饰效果有能把过道无限的利用,沙发与鞋柜的结合又同时考虑了家庭的隐私性。餐厅多功能柜的设计既增加了收纳空间,也对原建筑电梯房的隔音起了保证,三个卧室都设有独立的书桌功能,而在储藏功能上还设计了独立的走入式衣库,让你生活学习俩不误。


108方户型图

108方户型图


22.jpg

太阳升起,新的一天,新的开始!
您需要登录后才可以回帖 登录 | 注册

本版积分规则

 
 
技术支持
在线客服
工作时间:
8:00-18:00
客服热线:
15868825306
微信小编扫一扫

QQ|小黑屋| Archiver| 丁桥|

关于我们 | 招贤纳士 | 版权声明 | 免责声明 | 市场合作

丁兰生活网

丁兰生活网合作热线 0571-88992676 15868825306
浙公网安备 33010402000160号
浙ICP备09103129号-1号X3.4©


快速回复 返回顶部 返回列表