丁兰生活网

查看: 12234|回复: 2

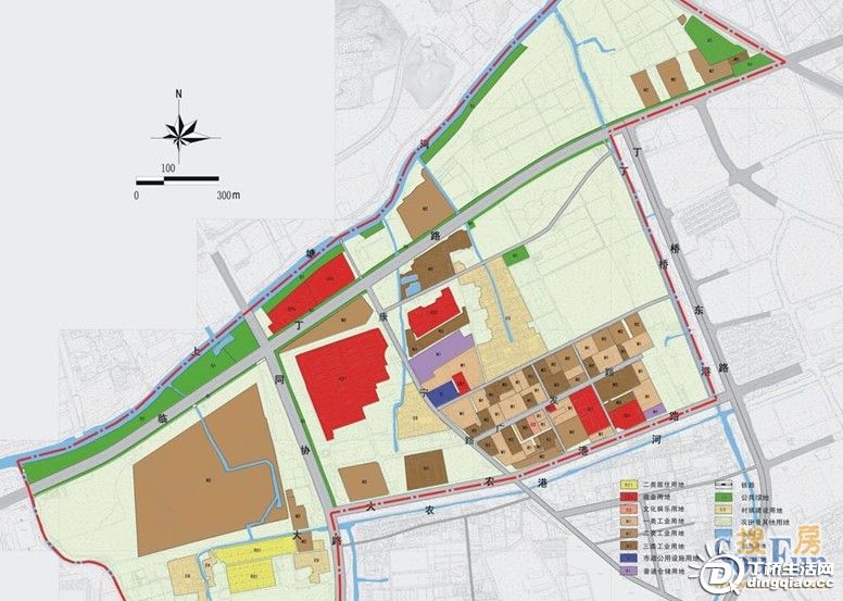
丁桥综合体范围——丁桥西单元规划(超详细)

[复制链接]

该用户从未签到

参加活动:0

组织活动:0

37

主题

85

回帖

949

金币

大班

Rank: 1

积分
501
发表于 2010-7-28 09:06:49 | 显示全部楼层 |阅读模式
根据杭州市规划局对丁桥综合体项目的总体规划,丁桥板块分为“丁桥规划单元”和“丁桥西规划单元”。

丁桥规划单元东至丁桥港-笕丁路,西至同协路,南至石祥路,北至大农港路,总面积281.67公顷;丁桥西规划单元东至绕城高速-丁桥港,西至五会港,南至大农港路,北至上塘河。两个区块都地处江干区北部,属未来城市格局“一主三副”中的主城区。

丁桥单元定位为“生态和谐的现代居住区”,规划区整体形成“一心一园,一带三区”的布局结构。“一心”指规划区南部的公共中心;“一园”指华丰路与杭玻路之间形成的城市公园;“一带”指规划区南部的基础设施走廊;“一轴”指由上塘河向南延伸至中央公园的公共景观轴;“三区”指三个综合片区,以康宁路和笕丁路为界形成。

丁桥西单元:公共活动区

丁桥西单元的功能定位为“服务完善的公共活动区、便捷舒适的品质生活区”。规划区整体形成“一心一园、一带一轴三区”的布局结构。“一心”指地铁上盖公共中心;“一园”指规划区中部形成的中央公园;“一带”指南部沿上塘河形成的滨河景观风光带;“一轴”是由上塘河向南延伸至中央公园的公共景观轴;“三区”是以同协路、临丁路和笕丁路为界,规划区整体形成三个综合片区。

道路交通规划方面,丁桥西单元的城市主干路40米-60米宽的临丁路、华中路、同协路、笕丁路和丁桥东路;次干路有东西向的大农港路和南北向的同协支路、康宁路、和笕丁路。另有赵家路、丁桥港路、广发路、华东路、建塘路、赵家浜路等多条城市支路。

1.jpg
2.jpg
3.jpg

评分

参与人数 1金币 +10 收起 理由
大芒果 + 10 LZ辛苦辛苦

查看全部评分

该用户从未签到

参加活动:0

组织活动:0

37

主题

85

回帖

949

金币

大班

Rank: 1

积分
501
 楼主| 发表于 2010-7-28 09:08:06 | 显示全部楼层
4.jpg
5.jpg
6.jpg

该用户从未签到

参加活动:0

组织活动:0

37

主题

85

回帖

949

金币

大班

Rank: 1

积分
501
 楼主| 发表于 2010-7-28 09:10:16 | 显示全部楼层
9.jpg
10.jpg



11.jpg
12.jpg
13.jpg



14.jpg
15.jpg
您需要登录后才可以回帖 登录 | 注册

本版积分规则

 
 
技术支持
在线客服
工作时间:
8:00-18:00
客服热线:
15868825306
微信小编扫一扫

QQ|小黑屋| Archiver| 丁桥|

关于我们 | 招贤纳士 | 版权声明 | 免责声明 | 市场合作

丁兰生活网

丁兰生活网合作热线 0571-88992676 15868825306
浙公网安备 33010402000160号
浙ICP备09103129号-1号X3.4©


快速回复 返回顶部 返回列表