丁兰生活网

查看: 29740|回复: 7

[郡枫绿园] 04户装修图你们会选哪个

[复制链接]

该用户从未签到

参加活动:0

组织活动:0

5

主题

38

回帖

828

金币

小班

Rank: 1

积分
291
发表于 2014-4-4 17:11:45 | 显示全部楼层 |阅读模式
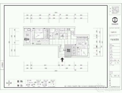
04户装修图你们会选哪个

方案一

方案一

方案二

方案二

该用户从未签到

参加活动:0

组织活动:0

1

主题

96

回帖

2128

金币

大班

Rank: 1

积分
735
发表于 2014-4-4 17:17:01 | 显示全部楼层
家里经常开伙的用1,不开伙的用2

该用户从未签到

参加活动:0

组织活动:0

0

主题

121

回帖

1772

金币

大班

Rank: 1

积分
668
发表于 2014-4-4 18:14:43 | 显示全部楼层
看的不是很清楚,感觉方案二改变较大。等我上班时再参考一下。方案二中,朝北的小房间是做什么用了?

该用户从未签到

参加活动:0

组织活动:0

11

主题

721

回帖

8982

金币

小三

Rank: 2

积分
3457
发表于 2014-4-4 18:44:38 | 显示全部楼层
厨房也能挪地方吗?难道是一楼?

该用户从未签到

参加活动:0

组织活动:0

36

主题

149

回帖

780

金币

小班

扫上面的二维码,有东西送哦 www.hzzlsj.com

Rank: 1

积分
434
QQ
发表于 2014-4-8 11:11:56 | 显示全部楼层
感觉还是第一个实用

该用户从未签到

参加活动:0

组织活动:0

5

主题

38

回帖

828

金币

小班

Rank: 1

积分
291
 楼主| 发表于 2014-4-11 21:57:16 | 显示全部楼层
你们有设计图也晒一下啊

该用户从未签到

参加活动:0

组织活动:0

0

主题

21

回帖

197

金币

托班

Rank: 1

积分
80
发表于 2014-4-29 12:45:42 | 显示全部楼层
图太糊了看得不是很清楚,还是方案一吧。要是经常烧饭油烟会很大。
您需要登录后才可以回帖 登录 | 注册

本版积分规则

 
 
技术支持
在线客服
工作时间:
8:00-18:00
客服热线:
15868825306
微信小编扫一扫

QQ|小黑屋| Archiver| 丁桥|

关于我们 | 招贤纳士 | 版权声明 | 免责声明 | 市场合作

丁兰生活网

丁兰生活网合作热线 0571-88992676 15868825306
浙公网安备 33010402000160号
浙ICP备09103129号-1号X3.4©


快速回复 返回顶部 返回列表