丁兰生活网

查看: 20929|回复: 14

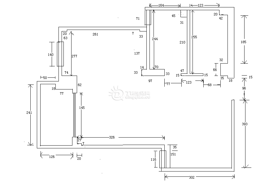
2011.2.19阳光最新照片(新增户型图尺寸)

  [复制链接]

该用户从未签到

参加活动:0

组织活动:0

33

主题

521

回帖

5919

金币

小二

Rank: 2

积分
2716
发表于 2011-2-20 14:20:24 | 显示全部楼层 |阅读模式
本帖最后由 cyz2277 于 2011-4-9 22:59 编辑

昨天早上,去探了下阳光逸城,进了17幢,拍了一点照片,量了中间套的尺寸(中间套就就17-1-802能进去,边套还好多可以进去的),不过尺寸图还没来得及画出来,就把照片给大家分享分享吧。 nEO_IMG_阳台2.jpg nEO_IMG_阳台1.jpg nEO_IMG_阳台.jpg nEO_IMG_卫生间4.jpg nEO_IMG_卫生间3.jpg nEO_IMG_卫生间2.jpg nEO_IMG_卫生间1.jpg nEO_IMG_门外1.jpg nEO_IMG_门外.jpg nEO_IMG_楼梯.jpg nEO_IMG_空调位.jpg nEO_IMG_客厅窗户.jpg nEO_IMG_开门.jpg nEO_IMG_俯瞰图.jpg nEO_IMG_顶梁.jpg nEO_IMG_电梯.jpg nEO_IMG_大门.jpg nEO_IMG_大房间1.jpg nEO_IMG_大房间.jpg nEO_IMG_厨卫.jpg nEO_IMG_厨房窗户.jpg nEO_IMG_厨房1.jpg nEO_IMG_厨房.jpg nEO_IMG_DSC00357.jpg nEO_IMG_DSC00356.jpg nEO_IMG_DSC00355.jpg nEO_IMG_DSC00354.jpg nEO_IMG_DSC00353.jpg nEO_IMG_DSC00352.jpg nEO_IMG_DSC00351.jpg nEO_IMG_DSC00350.jpg nEO_IMG_DSC00349.jpg nEO_IMG_DSC00348.jpg nEO_IMG_DSC00347.jpg nEO_IMG_DSC00346.jpg nEO_IMG_DSC00345.jpg nEO_IMG_DSC00344.jpg nEO_IMG_DSC00343.jpg nEO_IMG_DSC00342.jpg nEO_IMG_DSC00341.jpg nEO_IMG_DSC00340.jpg nEO_IMG_DSC00339.jpg nEO_IMG_DSC00338.jpg nEO_IMG_DSC00336.jpg nEO_IMG_DSC00335.jpg nEO_IMG_DSC00334.jpg nEO_IMG_DSC00333.jpg nEO_IMG_DSC00332.jpg nEO_IMG_DSC00331.jpg nEO_IMG_DSC00330.jpg nEO_IMG_DSC00329.jpg nEO_IMG_DSC00328.jpg nEO_IMG_DSC00327.jpg nEO_IMG_DSC00326.jpg nEO_IMG_DSC00310.jpg nEO_IMG_DSC00309.jpg nEO_IMG_DSC00306.jpg nEO_IMG_DSC00290.jpg nEO_IMG_17前.jpg nEO_IMG_阳台房间.jpg






QQ截图未命名.png
DSC00327.JPG
nEO_IMG_DSC00337.jpg

评分

参与人数 8金币 +112 魅力 +15 收起 理由
羽海野千葉 + 1 很好!~ 不过还想看楼顶的~
丁桥阳光逸城 + 1 感谢分享!!!
掌上旻猪 + 20 + 5
cck + 20 + 5 非常全面
happy123 + 20 谢谢分享

查看全部评分

上丁桥生活网,享精彩新生活!

该用户从未签到

参加活动:0

组织活动:0

92

主题

4057

回帖

2万

金币

vip

Rank: 8Rank: 8

积分
14811

水神版主桃小丁桃小乔吃货勋章

QQ
发表于 2011-2-20 15:30:39 | 显示全部楼层
谢谢楼主!楼主辛苦:handshake

该用户从未签到

参加活动:0

组织活动:0

25

主题

187

回帖

1879

金币

大班

Rank: 1

积分
821
发表于 2011-2-20 15:43:58 | 显示全部楼层
阳光的房子不错

该用户从未签到

参加活动:0

组织活动:0

20

主题

247

回帖

1661

金币

一派堂主

Rank: 7Rank: 7Rank: 7

积分
918
发表于 2011-2-20 15:48:16 | 显示全部楼层
{:24:}建得七七八八了!
第八张的有3扇木门的是哪边?

该用户从未签到

参加活动:0

组织活动:0

33

主题

521

回帖

5919

金币

小二

Rank: 2

积分
2716
 楼主| 发表于 2011-2-20 15:49:29 | 显示全部楼层
过道的水电箱

该用户从未签到

参加活动:0

组织活动:0

75

主题

788

回帖

1万

金币

版主

Rank: 7Rank: 7Rank: 7

积分
5881

特别贡献版主优秀会员

发表于 2011-2-20 19:18:04 | 显示全部楼层
楼主辛苦了;

该用户从未签到

参加活动:0

组织活动:0

756

主题

9451

回帖

10万

金币

超级版主

权哥

Rank: 8Rank: 8

积分
53809

桃小丁发烧车友水神优秀会员吃货勋章

发表于 2011-2-21 11:47:07 | 显示全部楼层
辛苦:handshake

该用户从未签到

参加活动:0

组织活动:0

75

主题

788

回帖

1万

金币

版主

Rank: 7Rank: 7Rank: 7

积分
5881

特别贡献版主优秀会员

发表于 2011-2-23 10:22:05 | 显示全部楼层
等待着阳光交房日子的到来,希望更多的邻居像楼主这样多多的去关注和拍照以便方便邻居共享

该用户从未签到

参加活动:0

组织活动:0

3

主题

36

回帖

270

金币

小班

Rank: 1

积分
180
发表于 2011-2-23 13:00:25 | 显示全部楼层
真好呀,但你们不觉得边套门口的栏杆那块不安全吗?

该用户从未签到

参加活动:0

组织活动:0

65

主题

441

回帖

1080

金币

版主

Rank: 7Rank: 7Rank: 7

积分
1041

特别贡献版主优秀会员

发表于 2011-2-24 20:10:01 | 显示全部楼层
阳光入驻将成为丁桥最大的经济适用房小区{:geili:}
您需要登录后才可以回帖 登录 | 注册

本版积分规则

 
 
技术支持
在线客服
工作时间:
8:00-18:00
客服热线:
15868825306
微信小编扫一扫

QQ|小黑屋| Archiver| 丁桥|

关于我们 | 招贤纳士 | 版权声明 | 免责声明 | 市场合作

丁兰生活网

丁兰生活网合作热线 0571-88992676 15868825306
浙公网安备 33010402000160号
浙ICP备09103129号-1号X3.4©


快速回复 返回顶部 返回列表