丁兰生活网

查看: 6031|回复: 0

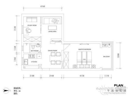
[美装精选] 【改造】巧隔断45平老房华丽变身

[复制链接]

该用户从未签到

参加活动:0

组织活动:0

361

主题

480

回帖

4330

金币

小二

Rank: 2

积分
2338
发表于 2012-11-23 10:34:26 | 显示全部楼层 |阅读模式
本帖最后由 の陽ぁ囡ぢ囡 于 2012-11-23 10:39 编辑

T1CM20XgFfXXXXXXXX_!!175221065-0-pix_副本.jpg T1S52TXX4oXXXXXXXX_!!175221065-0-pix.jpg
T16.DYXhNkXXXXXXXX_!!175221065-0-pix.jpg T1psH0XaddXXXXXXXX_!!175221065-0-pix.jpg T18n6ZXjBgXXXXXXXX_!!175221065-0-pix.jpg T1voHZXlXgXXXXXXXX_!!175221065-0-pix.jpg T1fffZXgVmXXXXXXXX_!!175221065-0-pix.jpg_310x310.jpg T1psH0XaddXXXXXXXX_!!175221065-0-pix.jpg


您需要登录后才可以回帖 登录 | 注册

本版积分规则

 
 
技术支持
在线客服
工作时间:
8:00-18:00
客服热线:
15868825306
微信小编扫一扫

QQ|小黑屋| Archiver| 丁桥|

关于我们 | 招贤纳士 | 版权声明 | 免责声明 | 市场合作

丁兰生活网

丁兰生活网合作热线 0571-88992676 15868825306
浙公网安备 33010402000160号
浙ICP备09103129号-1号X3.4©


快速回复 返回顶部 返回列表